Office
Floor
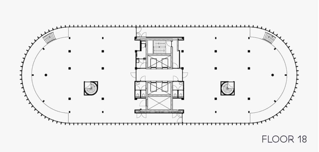
18 – 19

1,265 sq m
BACK

The top floors offer amazing views of the surroundings and are connected by a striking open staircase.

 

Other features include:

  • Structural walls are plastered (white)
  • LED lighting, controlled by motion detection
  • Convenient wall cable duct system at floor level
  • Fibre-optic point on each floor (by data provider Utilisys)
  • One electricity submeter
  • Pantry connection
  • Sanitary group
  • Ground to ceiling windows
  • Partitioning possibilities per grid of 1.500 mm façade length
  • Floor 18: 2,965 mm net ceiling height
  • Floor 19: 3,350 mm net ceiling height

 

RiseAbove theOrdinary.
RiseAbove theOrdinary.

The working climate is always kept agreeable, in line with the applicable BREEAM certification:

  • Office ventilation (excluding corridors) of 2,5 fold per hour
  • Coves for internal sun blinds (which you choose and provide yourself)

WELCOME TO YOUR NEW OFFICE

The Drive and Live Tower constitute a mixed use complex, with an office tower, a residential tower and modern car parking. The Drive Tower offers 15,696 sq m of premium office space across 19 floors. Rental rates start at €295/sq m, with a minimum of half a floor for most levels. Want to stand out? Lease both floors 1 and 2 and enjoy your very own private entrance.

Approximately 1,265 sq m
Floor 18 and 19 are equalized and carpet-ready. The top floors offer amazing views of the surroundings and are connected by a striking open staircase.Read more
Approximately 772 sq m
Floor 3 to 17 are equalized and carpet-ready. Rental rates start at €295/sq m, with a minimum of half a floor for most levels. Read more
Approximately 1,437 sq m
Floors 1 and 2 are leveled and carpet-ready. The key feature of these floors is the option to create your own private office entrance (when leasing both floors 1 and 2).Read more
On the ground floor, you will find everything you need for a pleasant workday. A welcoming reception, as well as relaxation areas including a coffee bar, restaurant, informal seating options and a landscaped garden. The space connecting the Drive Tower and the Live Tower can accommodate a variety of commercial units. From a juice bar to a gym, and from a dry cleaning service to meeting rooms.
The basement offers a modern car parking. The basement offers a modern car parking. There is also an internal bike parking, which is accessible through a door and internal staircase. This offers also 100 power sockets, for charging your electric bike. The basement offers a modern car parking. 50% of car parking spaces are also decked out with electrical charging stations. Two changing rooms with showers are located in the basement as well.
This site is registered on wpml.org as a development site. Switch to a production site key to remove this banner.